服務熱線
021-33617555
全國服務熱線:
021-33617555
JM744X、JM644X隔膜式液壓、氣動快開排泥閥,是一種由液壓源或氣動源作執行機構的角型截斷類閥門。通常成排安裝在沉淀池底部外側壁,用以排除池底沉淀的泥砂和污物。該閥由尼龍強化橡膠隔膜將閥門分為兩個腔室,接通液壓或氣動源,采用電動或手動二位四通換向閥控制,實現快速排泥。該閥將隔膜代替活塞,無運動摩擦,更適用于泥漿等顆粒介質,大大提高了閥門的使用壽命。
排泥閥:
JM744X、JM644X膜片式液壓、氣動快開排泥閥
用途Purpose
安裝在各類沉淀池的底部壁外,用以排除池底沙及污物。
工作原理及性能Working principle and performance
本產品由液壓缸和角式截止閥組合而成,液壓缸內動力帶動閥瓣升降,使閥體通道開或閉,以達到流體通斷。
液壓缸的活塞密封件為型皮碗,其密封性能好,經久耐用。閥瓣與閥座為軟密封,密封性能好,無泄漏。采用電動二位四通換向閥或手動二位四通換向閥集中控制,操作方便。
JM744X、JM644 X MEMBRANE HYDRAULIC, PNEUMATIC QUICK-OPENED MUD VALVE
產品特點與用途Product characteristics and usahe
該閥的主要特點是采用雙室隔膜傳動機構替代活塞式,無運動磨損,壽命長。主要用途是安裝在各類沉淀池的底部壁外,用以排除池底的泥沙及污物。
主要技術參數
Main technique number
1、公稱壓力:1.0MPa
2、液壓缸工作介質:清水、氣
3、液壓缸工作壓力:0.15-1.0MPa
4、介質溫度;0-80℃
隔膜式排泥閥技術參數:
法蘭標準:GB/T17241.6GB/T9113
試驗標準:GB/T13927API598
主要零部件材料:
零件名稱 |
閥體、閥蓋 |
膜片壓板、閥盤 |
閥桿 |
膜片 |
材料 |
鑄鐵、球鐵、碳鋼 |
球鐵、青銅 |
不銹鋼 |
尼龍強化橡膠 |
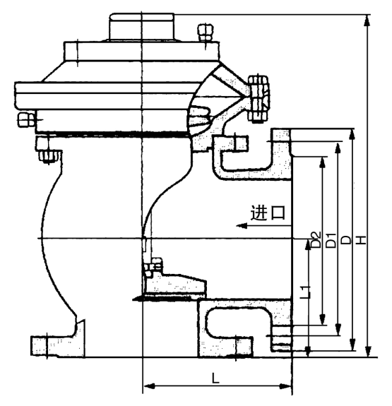
主要外形連接尺寸 單位:mm
DN |
100 |
150 |
200 |
250 |
300 |
350 |
400 |
L |
160 |
190 |
225 |
260 |
280 |
315 |
340 |
L1 |
120 |
150 |
190 |
220 |
260 |
300 |
340 |
H |
370 |
440 |
530 |
615 |
785 |
880 |
970 |



